市川市北国分2丁目の分譲住宅一覧|埼玉・東京・千葉の新築・中古一戸建て、不動産情報ならエムイーPLUS城東にお任せください
定休日:年中無休 営業時間:9:00〜
0120-444-702
会員登録
マイページ
物件検索
人気エリア特集
東京都足立区
千葉県松戸市
埼玉県八潮市
サービス一覧
ライフプラン相談
売却査定
ご契約の流れ
特典・サービス
WEBパンフレット
お役立ち情報
売却
買取
住宅ローンについて
よくある質問
販売実績
ローンシミュレーション
会社案内
会社概要
アクセス
アドバイザー紹介
当社について
来店予約
お問い合わせ
2
件中
1〜2
件を表示
1
check
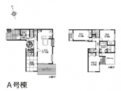
新築一戸建て|市川市北国分2丁目分譲住宅
新築一戸建て
価格
5,180万円
所在地
市川市北国分2丁目
交通
北総鉄道 北国分駅 徒歩12分
建物面積
121.77m
2
土地面積
219.43m
2
check
新築一戸建て|市川市北国分2丁目分譲住宅
新築一戸建て
価格
5,180万円
所在地
市川市北国分2丁目
交通
北総鉄道 北国分駅 徒歩12分
建物面積
109.23m
2
土地面積
224.72m
2
2
件中
1〜2
件を表示
1
マイページ
種別から検索
新築一戸建て
マンション
土地
中古一戸建て
価格から探す
1000万円台〜
2000万円台〜
3000万円台〜
4000万円台〜
5000万円台〜
こだわりから探す
更新したての新着物件
最新値下げ物件
ファミリー向け物件
カースペース2台以上
カウンターキッチン
コンテンツ一覧
ご契約の流れ
保険のご相談
ライフプラン相談
特典・サービス
売却
買取
お客様の声
WEBパンフレット
会社概要
エムイーPLUS城東株式会社
〒121-0062
東京都足立区南花畑2丁目
7番8号
0120-444-702
営業時間 : 9:00〜
定休日 : 年中無休
詳しくはこちら
物件検索
お気に入り
閲覧履歴
来店予約
ログイン
マイページ
無料会員登録
マイページ
お問い合わせ
来店予約