川口市戸塚東 新築一戸建て 全3棟 埼玉県川口市戸塚東2丁目|3,990万円の新築一戸建て|分譲住宅や新築物件|エムイーPLUS城東株式会社

インスタグラム
定休日:年中無休 営業時間:9:00〜 0120-444-702
TOPページ >
物件検索 >
新築一戸建て
>
川口市
>
JR武蔵野線
>
川口市戸塚東 新築一戸建て 全3棟

新築一戸建て

川口市戸塚東 新築一戸建て 全3棟
お気に入り
価格 3,990万円値下がり ローンシミュレーション
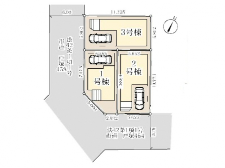
所在地 埼玉県川口市戸塚東2丁目
この地域周辺の物件を見る
土地面積 54.76m² (16.56坪) 建物面積 102.87u
築年月 2025年12月築 間取り 4LDK (-)
交通
JR武蔵野線 東川口 徒歩13分
埼玉高速鉄道 東川口 徒歩13分
ここがおすすめ

-


  • 現地外観写真 4LDK。南向きバルコニーのある明るい住まい。
  •  図面と異なる場合は現況を優先
  • 現地外観写真 暮らしやすさと居心地の良さにこだわったシンプルで飽きのこないデザイン !
  • 現地外観写真 角地なので日当たりも良く、お家が堂々として見えます。
  •  ビルトインタイプは大切なお車を傷や汚れから守ることができます。
  • 玄関 ラクラク開錠!スマートコントロールキー。
  • その他 インターホン・ポスト・宅配BOX。エントランスになじむシンプルデザイン。
  • その他 駐輪スペースなどに使えます。
  • その他 TVモニター付インターホンでセキュリティ面にも配慮。
  • 現地外観写真 堂々完成!! ここから始まる新生活を応援いたします!
  • 現地外観写真 見通しの良さとともに、街並みに開放感を与えてくれます。
  • リビング ご家族の賑やかな話し声で包まれる明るいリビング  ※家具はCGです
  • リビング 明るい2階リビング!外からの視線をシャットアウトして家族のプライバシーを守ります。
  • その他内観 内装「ただいま」「おかえり」家族とのコミュニケーションが深まるリビングイン階段があります。
  • キッチン リビングを見渡せる人気のカウンターキッチン。 家族を見守りながら家事をすることができます。
  • キッチン 料理をしながらご家族との会話を楽しめる対面カウンターキッチン
  • 洗面台・洗面所 大きく見やすい三面鏡で清潔感ある洗面台は、身だしなみチェックや肌のお手入れにおすすめです。
  • その他 小窓がついているので湿気の多い場所でも換気が十分行えます。毎日の身支度を気持ち良く!
  • 浴室 一日の疲れを癒やす大切なバスタイム。ゆっくりとお風呂を楽しんで疲れをとりたいですね!
  • その他内観 明るいバルコニーサイドに洋室を設置。目覚めの良い寝室に。
  • 寝室 2面採光なので、明るく風通しも良く心地良い生活が送れます。
  • 子供部屋 子供部屋にもおすすめな収納スペースたっぷりの居室
  • 玄関 飾り棚を利用して、お越しいただくお客様をおもてなしできます。
  • バルコニー 南向きのバルコニー!お洗濯物が気持ちよく乾きます。
  • 収納 洋室のクローゼット。奥行きがあるので厚手の衣類もすっきり収まります。
  • トイレ 換気用小窓があり、明るく清潔な空間です。
  • その他内観 面倒なお片づけは食洗機にお任せ!家事の負担が減って、時間にも気持ちにもゆとりができます。
  • その他内観 いつでも清潔なおいしいお水を。一つの水栓で水道水と浄水を使い分け。
  • その他内観 使いやすさを優先したスライド式収納タイプ!
  • その他内観 ガスコンロはSiセンサー搭載。火力調節や焦げ付き・消し忘れも防いでくれます。
お問い合わせ、資料請求、見学のお申し込みはこちらから

電話をかける(携帯・PHS可)
0120-444-702
「ホームページを見た」とお伝え下さい。

お問い合わせ番号をお伝えください
RHS-990979227

内見予約
お問合せ

セールスポイント

特徴
  • フローリング
  • システムキッチン
  • カウンターキッチン
  • シャンプードレッサー
  • 追い焚き
  • シャワー
  • バス・トイレ別
  • シャワートイレ
  • 室内洗濯機置場
  • 浴室乾燥機
  • コンロ二口
  • 床下収納
  • バルコニー
  • TVドアホン
  • 宅配ボックス
  • バイク置き場
  • 都市ガス
  • プライスダウン
セールスコメント
法第22条区域 景観法 建物面積:1階車庫面積約11.34平米含 建ぺい率:角地緩和 


物件概要

採光面 - 構造/階数 木造/地上3階建
建ぺい率 70(%) 容積率 200(%)
駐車場 現況/引渡し 空家/即時
土地権利 所有権 私道負担面積 -

接道状況 接道: 西 公道 道路幅: 6m
接道: 南 公道 道路幅: 6m
用途地域
第一種中高層住居専用地域
セットバック なし 法令上の制限 -
地目 宅地 地勢
建築確認番号 第25UDI1W建00537号 都市計画 市街化区域
取引態様 仲介
情報更新日 2026年04月30日 次回更新日 2026年05月14日
※各種情報と差異がある場合は現況優先となります

学区情報

小学校区
()
中学校区
()
※物件情報の学区情報について
当サイト物件情報に記載されております通学区域(学区)情報は、国土数値情報ダウンロードサービスが提供する小学校区データ【2016年度】及び中学校区データ【2016年度】を元に加工したものですので、記載情報が現在の学区域と異なる場合がございます。
国土数値情報ダウンロードサービスのWEBサイト上で記述通り、データは必ずしも正確とは言えません。また、通学区域(学区)は毎年見直しの対象となりますので、そちらを踏まえ学区情報は参考としてご活用下さい。
お問い合わせ、資料請求、見学のお申し込みはこちらから

電話をかける(携帯・PHS可)
0120-444-702
「ホームページを見た」とお伝え下さい。

お問い合わせ番号をお伝えください
RHS-990979227

内見予約
お問合せ

この物件でローンシミュレーションする

価格 万円
年利率
ボーナス払い 返済年数
頭金 直接入力する 万円

毎月のご返済額

ボーナス(×年2回)

物件価格

3,990万円
※返済金額はあくまでも目安です。
  • こちらの物件を見たお客様はこんな物件もチェックしています。
  • お気に入り物件

電話でお問い合わせ
エムイーPLUS城東

電話をかける

0120-444-702

※「ホームページを見た」とお伝えください。
お問い合わせ番号をお伝えください
RHS-990979227

お問い合わせ

お問い合わせ内容
お問合せ内容必須
【備考欄】
詳細な見学ご希望時間、ご質問、ご希望条件などがございましたらお聞かせ下さい。
(2000文字以内)
お客様情報
お名前必須
連絡先必須 メールアドレス

※ご記入いただいたメールアドレス宛てに、お問合せ内容の確認メールをお送りいたします。
※Yahoo!メールなどのフリーメールをご利用の場合、迷惑メールフォルダに入る場合があります。
 迷惑メールのフォルダ・設定等をご確認下さい。
電話番号
FAX(任意)
※ご入力いただいたお客さまの個人情報は、「個人情報の取扱いについて」に基づき適正に取り扱います。必ずお読みになり、同意の上お問い合わせください。

お気軽にお問い合わせください

0120-444-702
物件番号 RHS-990979227
※「ホームページを見た」
とお伝え下さい。
学区検索 エリア検索 来店予約はこちら
スマートフォン用サイトはこちら

会社概要

店舗写真

エムイーPLUS城東株式会社
〒121-0062
東京都足立区南花畑2丁目
7番8号
0120-444-702
営業時間 : 9:00〜
定休日 : 年中無休

詳しくはこちら