越谷市千間台西 第7 新築一戸建て 全1棟 埼玉県越谷市千間台西6丁目|3,480万円の新築一戸建て|分譲住宅や新築物件|エムイーPLUS城東株式会社

インスタグラム
定休日:年中無休 営業時間:9:00〜 0120-444-702
TOPページ >
物件検索 >
新築一戸建て
>
越谷市
>
東武伊勢崎線
>
越谷市千間台西 第7 新築一戸建て 全1棟

新築一戸建て

越谷市千間台西 第7 新築一戸建て 全1棟
お気に入り
価格 3,480万円値下がり ローンシミュレーション
所在地 埼玉県越谷市千間台西6丁目
この地域周辺の物件を見る
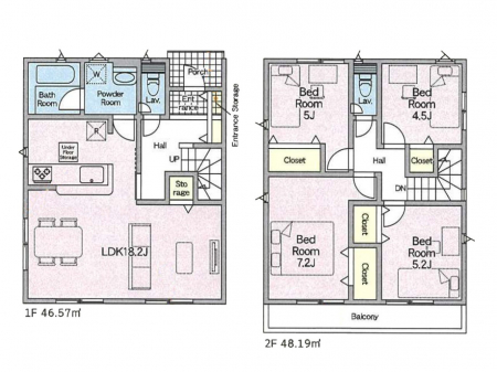
土地面積 132.24m² (40坪) 建物面積 94.76u
築年月 2025年11月築 間取り 4LDK (-)
交通
東武伊勢崎線 せんげん台 千間台西6丁目 バス10分 停歩5分
東武伊勢崎線 大袋 徒歩23分
ここがおすすめ

-


  • 現地外観写真 たっぷりの陽光と心地よい風が舞い込む住まい
  •  間取り
  • 現地外観写真 洗練された外観、上質な住空間が広がる室内は永く安心して過ごせる住居です。
  • 現地外観写真 ここから始まる新生活を応援いたします
  •  目の前が駐車場だと雨の日も大量にお買い物をした時も便利ですね
  • 玄関 大切な家族、来客を出迎える玄関。
  • その他 シンプルなデザインのポスト
  • その他 お子様の遊び場やガーデニングスペースとして様々な使い方ができますね。
  • その他 スマートに開錠できる電子キー
  • その他 EV充電用屋外コンセント
  • リビング ご家族の賑やかな話し声で包まれる明るいリビング  ※家具はCGです
  • リビング 落ち着いた雰囲気のLDKは家族みんなの快適空間
  • その他内観 家族団らんの時間も増えそうなくつろぎのLDK
  • キッチン ゆとりあるキッチンではご家族と楽しくお料理ができます。
  • キッチン カウンター越しに楽しいおしゃべり。いつものお料理がもっと美味しくなりそうですね。
  • 洗面台・洗面所 スタイリングに便利な三面鏡、ミラーキャビネットで細かい物スッキリ
  • その他 上質な洗面空間がゆとりの時間を演出
  • 浴室 落ち着いた雰囲気でゆっくりお寛ぎいただけるバスルーム
  • その他内観 やさしい光がさしこむ居室はしっかり収納付き
  • 寝室 明るいバルコニーサイドに洋室を設置。目覚めの良い寝室に。
  • 子供部屋 2面採光で気持ちよく自然光が取り入れられるのでお子様のお部屋にもピッタリ
  • 玄関 明るい陽光が入り込む玄関。ご家族の靴もスッキリ収納できる玄関収納付き!
  • バルコニー ゆったりバルコニーだから沢山お洗濯ものを干せます。
  • 収納 洋室のクローゼット。奥行きがあるので厚手の衣類もすっきり収まります。
  • トイレ 清潔感のある白を基調とした落ち着ける空間
  • 周辺環境 駅 1600m せんげん台駅
  • 周辺環境 中学校 750m 越谷市立千間台小学校
  • 周辺環境 中学校 850m 越谷市立千間台中学校
  • 周辺環境 幼稚園・保育園 1500m 認定こども園しらこばと幼稚園
  • 周辺環境 病院 400m 宮本医院
お問い合わせ、資料請求、見学のお申し込みはこちらから

電話をかける(携帯・PHS可)
0120-444-702
「ホームページを見た」とお伝え下さい。

お問い合わせ番号をお伝えください
RHS-990985247

内見予約
お問合せ

セールスポイント

特徴
  • フローリング
  • システムキッチン
  • カウンターキッチン
  • シャンプードレッサー
  • バス・トイレ別
  • シャワートイレ
  • 浴室乾燥機
  • コンロ三口
  • 床下収納
  • バルコニー
  • TVドアホン
  • 都市ガス
  • カースペース2台以上
  • プライスダウン
セールスコメント
 


物件概要

採光面 - 構造/階数 木造/地上2階建
建ぺい率 60(%) 容積率 200(%)
駐車場 現況/引渡し 空家/即時
土地権利 所有権 私道負担面積 -

接道状況 接道: 北 7.7m 公道 道路幅: 12m 用途地域
第一種中高層住居専用地域
セットバック なし 法令上の制限 -
地目 宅地 地勢 平坦
建築確認番号 第KBI-SGM25-10-2542号 都市計画 市街化区域
取引態様 仲介
情報更新日 2026年04月16日 次回更新日 2026年04月30日
※各種情報と差異がある場合は現況優先となります

学区情報

小学校区
()
中学校区
()
※物件情報の学区情報について
当サイト物件情報に記載されております通学区域(学区)情報は、国土数値情報ダウンロードサービスが提供する小学校区データ【2016年度】及び中学校区データ【2016年度】を元に加工したものですので、記載情報が現在の学区域と異なる場合がございます。
国土数値情報ダウンロードサービスのWEBサイト上で記述通り、データは必ずしも正確とは言えません。また、通学区域(学区)は毎年見直しの対象となりますので、そちらを踏まえ学区情報は参考としてご活用下さい。
お問い合わせ、資料請求、見学のお申し込みはこちらから

電話をかける(携帯・PHS可)
0120-444-702
「ホームページを見た」とお伝え下さい。

お問い合わせ番号をお伝えください
RHS-990985247

内見予約
お問合せ

この物件でローンシミュレーションする

価格 万円
年利率
ボーナス払い 返済年数
頭金 直接入力する 万円

毎月のご返済額

ボーナス(×年2回)

物件価格

3,480万円
※返済金額はあくまでも目安です。

電話でお問い合わせ
エムイーPLUS城東

電話をかける

0120-444-702

※「ホームページを見た」とお伝えください。
お問い合わせ番号をお伝えください
RHS-990985247

お問い合わせ

お問い合わせ内容
お問合せ内容必須
【備考欄】
詳細な見学ご希望時間、ご質問、ご希望条件などがございましたらお聞かせ下さい。
(2000文字以内)
お客様情報
お名前必須
連絡先必須 メールアドレス

※ご記入いただいたメールアドレス宛てに、お問合せ内容の確認メールをお送りいたします。
※Yahoo!メールなどのフリーメールをご利用の場合、迷惑メールフォルダに入る場合があります。
 迷惑メールのフォルダ・設定等をご確認下さい。
電話番号
FAX(任意)
※ご入力いただいたお客さまの個人情報は、「個人情報の取扱いについて」に基づき適正に取り扱います。必ずお読みになり、同意の上お問い合わせください。

お気軽にお問い合わせください

0120-444-702
物件番号 RHS-990985247
※「ホームページを見た」
とお伝え下さい。
学区検索 エリア検索 来店予約はこちら
スマートフォン用サイトはこちら

会社概要

店舗写真

エムイーPLUS城東株式会社
〒121-0062
東京都足立区南花畑2丁目
7番8号
0120-444-702
営業時間 : 9:00〜
定休日 : 年中無休

詳しくはこちら