グラファーレ 草加市谷塚上町 7期 新築一戸建て 全1棟 埼玉県草加市谷塚上町 |3,590万円の新築一戸建て|分譲住宅や新築物件|エムイーPLUS城東株式会社

インスタグラム
定休日:年中無休 営業時間:9:00〜 0120-444-702
TOPページ >
物件検索 >
新築一戸建て
>
草加市
>
東武伊勢崎線
>
グラファーレ 草加市谷塚上町 7期 新築一戸建て 全1棟

新築一戸建て

グラファーレ 草加市谷塚上町 7期 新築一戸建て 全1棟
お気に入り
価格 3,590万円値下がり ローンシミュレーション
所在地 埼玉県草加市谷塚上町
この地域周辺の物件を見る
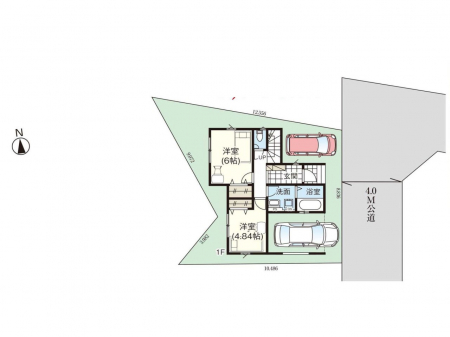
土地面積 96.33m² (29.14坪) 建物面積 102.16u
築年月 2026年2月築 間取り 3LDK (-)
交通
東武伊勢崎線 谷塚 徒歩20分
東武伊勢崎線 竹ノ塚 徒歩25分
ここがおすすめ

-


  • 現地外観写真 ゆとりが笑顔を生む心地よい生活
  •  間取り
  • 現地外観写真 たっぷりの陽光と心地よい風が舞い込む住まい
  • 現地外観写真 ここから始まる新生活を応援いたします
  •  生活に欠かせない駐車スペース。
  • 玄関 大切な家族、来客を出迎える玄関。
  • その他 シンプルデザインのポスト。
  • リビング 家族の和やかな会話が聞こえてきそう。開放感のあるリビングです。※家具はCGです
  • リビング 家族団らんの時間も増えそうなくつろぎのリビングダイニング。
  • その他内観 明るい陽光が注ぎ、寛ぎの雰囲気に満たされるダイニング。
  • キッチン 毎日使うキッチンだから、使いやすさ&お手入れのしやすさにこだわりました。
  • キッチン リビングで遊ぶお子様を見守りながらお料理ができる対面キッチン。
  • 洗面台・洗面所 収納力と機能性に優れた洗面化粧台
  • その他 身支度もスムーズにおこなえる脱衣場。
  • 浴室 落ち着いた雰囲気でゆっくりお寛ぎいただけるバスルーム
  • その他内観 バルコニーが開放感をプラスしてくれる洋室
  • 寝室 使いやすい形でベットや家具の置き方にも困ることもありません。
  • 子供部屋 窓からのやさしい光が心地よいプライベートルーム
  • 玄関 明るい玄関はお客様をお出迎えするのにぴったりです!
  • バルコニー ゆったりバルコニーだから沢山お洗濯ものを干せます。
  • その他 ウォークインクローゼット付きで生活空間を広く利用できます。
  • トイレ 明るく清潔感のあるトイレです。
  • 周辺環境 駅 1600m 東武伊勢崎線谷塚駅
  • 周辺環境 小学校 700m 草加市立両新田小学校
  • 周辺環境 中学校 800m 草加市立両新田中学校
  • 周辺環境 幼稚園・保育園 400m 草加市立やつかかみ保育園
  • 周辺環境 病院 1300m 医療法人社団協友会-メディカルトピア草加病院
  • その他内観 使いやすさを優先したスライド式収納タイプ!
  • その他内観 いつでも清潔なおいしいお水を。一つの水栓で水道水と浄水を使い分け。
  • その他内観 三口ガスコンロでお料理が一気にはかどりそう。
お問い合わせ、資料請求、見学のお申し込みはこちらから

電話をかける(携帯・PHS可)
0120-444-702
「ホームページを見た」とお伝え下さい。

お問い合わせ番号をお伝えください
RHS-990992643

内見予約
お問合せ

セールスポイント

特徴
  • フローリング
  • システムキッチン
  • シャンプードレッサー
  • 追い焚き
  • シャワー
  • バス・トイレ別
  • シャワートイレ
  • 室内洗濯機置場
  • CATV
  • BSアンテナ
  • 浴室乾燥機
  • コンロ二口
  • コンロ三口
  • Wクローゼット
  • バルコニー
  • TVドアホン
  • 都市ガス
  • カースペース2台以上
  • プライスダウン
セールスコメント
 


物件概要

採光面 - 構造/階数 木造/地上2階建
建ぺい率 60(%) 容積率 200(%)
駐車場 現況/引渡し 空家/即時
土地権利 所有権 私道負担面積 -

接道状況 接道: 東 8.8m 公道 道路幅: 4m 用途地域
第一種住居地域
セットバック なし 法令上の制限 宅地造成及び特定盛土等規制法
地目 宅地 地勢
建築確認番号 第HPA-25-12918-1号 都市計画 市街化区域
取引態様 仲介
情報更新日 2026年04月25日 次回更新日 2026年05月09日
※各種情報と差異がある場合は現況優先となります

学区情報

小学校区
()
中学校区
()
※物件情報の学区情報について
当サイト物件情報に記載されております通学区域(学区)情報は、国土数値情報ダウンロードサービスが提供する小学校区データ【2016年度】及び中学校区データ【2016年度】を元に加工したものですので、記載情報が現在の学区域と異なる場合がございます。
国土数値情報ダウンロードサービスのWEBサイト上で記述通り、データは必ずしも正確とは言えません。また、通学区域(学区)は毎年見直しの対象となりますので、そちらを踏まえ学区情報は参考としてご活用下さい。
お問い合わせ、資料請求、見学のお申し込みはこちらから

電話をかける(携帯・PHS可)
0120-444-702
「ホームページを見た」とお伝え下さい。

お問い合わせ番号をお伝えください
RHS-990992643

内見予約
お問合せ

この物件でローンシミュレーションする

価格 万円
年利率
ボーナス払い 返済年数
頭金 直接入力する 万円

毎月のご返済額

ボーナス(×年2回)

物件価格

3,590万円
※返済金額はあくまでも目安です。
  • こちらの物件を見たお客様はこんな物件もチェックしています。
  • お気に入り物件

電話でお問い合わせ
エムイーPLUS城東

電話をかける

0120-444-702

※「ホームページを見た」とお伝えください。
お問い合わせ番号をお伝えください
RHS-990992643

お問い合わせ

お問い合わせ内容
お問合せ内容必須
【備考欄】
詳細な見学ご希望時間、ご質問、ご希望条件などがございましたらお聞かせ下さい。
(2000文字以内)
お客様情報
お名前必須
連絡先必須 メールアドレス

※ご記入いただいたメールアドレス宛てに、お問合せ内容の確認メールをお送りいたします。
※Yahoo!メールなどのフリーメールをご利用の場合、迷惑メールフォルダに入る場合があります。
 迷惑メールのフォルダ・設定等をご確認下さい。
電話番号
FAX(任意)
※ご入力いただいたお客さまの個人情報は、「個人情報の取扱いについて」に基づき適正に取り扱います。必ずお読みになり、同意の上お問い合わせください。

お気軽にお問い合わせください

0120-444-702
物件番号 RHS-990992643
※「ホームページを見た」
とお伝え下さい。
学区検索 エリア検索 来店予約はこちら
スマートフォン用サイトはこちら

会社概要

店舗写真

エムイーPLUS城東株式会社
〒121-0062
東京都足立区南花畑2丁目
7番8号
0120-444-702
営業時間 : 9:00〜
定休日 : 年中無休

詳しくはこちら