松伏町田島 第1 新築一戸建て 全1棟 埼玉県北葛飾郡松伏町田島 |2,980万円の新築一戸建て|分譲住宅や新築物件|エムイーPLUS城東株式会社

インスタグラム
定休日:年中無休 営業時間:9:00〜 0120-444-702
TOPページ >
物件検索 >
新築一戸建て
>
北葛飾郡松伏町
>
東武野田線
>
松伏町田島 第1 新築一戸建て 全1棟

新築一戸建て

松伏町田島 第1 新築一戸建て 全1棟
お気に入り
価格 2,980万円 ローンシミュレーション
所在地 埼玉県北葛飾郡松伏町田島
この地域周辺の物件を見る
土地面積 177.41m² (53.67坪) 建物面積 94.77u
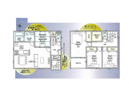
築年月 2026年6月築 間取り 4LDK (-)
交通
東武野田線 愛宕 十一軒入口 バス10分 停歩2分
東武伊勢崎線 北越谷 十一軒入口 バス18分 停歩2分
ここがおすすめ

-


  • 現地外観写真 ゆとりが笑顔を生む心地よい生活
  •  間取り
  • 現地外観写真 溢れる陽光でご家族の笑顔も輝く
  • 現地外観写真 ここから始まる新生活を応援いたします
  • 周辺環境 駅 4300m 愛宕駅
  • 周辺環境 小学校 1000m 松伏町立松伏小学校
  • 周辺環境 中学校 650m 松伏町立松伏中学校
  • 周辺環境 幼稚園・保育園 600m 第一保育所
  • 周辺環境 病院 800m 埼玉あすか松伏病院
  •  区画図
お問い合わせ、資料請求、見学のお申し込みはこちらから

電話をかける(携帯・PHS可)
0120-444-702
「ホームページを見た」とお伝え下さい。

お問い合わせ番号をお伝えください
RHS-991008986

内見予約
お問合せ

セールスポイント

特徴
  • フローリング
  • システムキッチン
  • カウンターキッチン
  • シャンプードレッサー
  • シャワートイレ
  • 浴室乾燥機
  • 床下収納
  • バルコニー
  • TVドアホン
  • カースペース2台以上
  • 新着物件
セールスコメント
 都市計画:市街化調整区域(建築許可:開発許可等による分譲地内)


物件概要

採光面 - 構造/階数 木造/地上2階建
建ぺい率 70(%) 容積率 200(%)
駐車場 現況/引渡し -/2026年7月上旬
土地権利 所有権 私道負担面積 -

接道状況 接道: 南西 11.5m 公道 道路幅: 4.2m
接道: 東南 8.9m 私道 道路幅: 4.1m
用途地域
指定なし
セットバック なし 法令上の制限 -
地目 宅地 地勢 平坦
建築確認番号 第KBI-SGM26-10-0530号 都市計画 市街化調整区域
取引態様 仲介
情報更新日 2026年04月15日 次回更新日 2026年04月29日
※各種情報と差異がある場合は現況優先となります

学区情報

小学校区
()
中学校区
()
※物件情報の学区情報について
当サイト物件情報に記載されております通学区域(学区)情報は、国土数値情報ダウンロードサービスが提供する小学校区データ【2016年度】及び中学校区データ【2016年度】を元に加工したものですので、記載情報が現在の学区域と異なる場合がございます。
国土数値情報ダウンロードサービスのWEBサイト上で記述通り、データは必ずしも正確とは言えません。また、通学区域(学区)は毎年見直しの対象となりますので、そちらを踏まえ学区情報は参考としてご活用下さい。
お問い合わせ、資料請求、見学のお申し込みはこちらから

電話をかける(携帯・PHS可)
0120-444-702
「ホームページを見た」とお伝え下さい。

お問い合わせ番号をお伝えください
RHS-991008986

内見予約
お問合せ

この物件でローンシミュレーションする

価格 万円
年利率
ボーナス払い 返済年数
頭金 直接入力する 万円

毎月のご返済額

ボーナス(×年2回)

物件価格

2,980万円
※返済金額はあくまでも目安です。

電話でお問い合わせ
エムイーPLUS城東

電話をかける

0120-444-702

※「ホームページを見た」とお伝えください。
お問い合わせ番号をお伝えください
RHS-991008986

お問い合わせ

お問い合わせ内容
お問合せ内容必須
【備考欄】
詳細な見学ご希望時間、ご質問、ご希望条件などがございましたらお聞かせ下さい。
(2000文字以内)
お客様情報
お名前必須
連絡先必須 メールアドレス

※ご記入いただいたメールアドレス宛てに、お問合せ内容の確認メールをお送りいたします。
※Yahoo!メールなどのフリーメールをご利用の場合、迷惑メールフォルダに入る場合があります。
 迷惑メールのフォルダ・設定等をご確認下さい。
電話番号
FAX(任意)
※ご入力いただいたお客さまの個人情報は、「個人情報の取扱いについて」に基づき適正に取り扱います。必ずお読みになり、同意の上お問い合わせください。

お気軽にお問い合わせください

0120-444-702
物件番号 RHS-991008986
※「ホームページを見た」
とお伝え下さい。
学区検索 エリア検索 来店予約はこちら
スマートフォン用サイトはこちら

会社概要

店舗写真

エムイーPLUS城東株式会社
〒121-0062
東京都足立区南花畑2丁目
7番8号
0120-444-702
営業時間 : 9:00〜
定休日 : 年中無休

詳しくはこちら