グラファーレ 習志野市東習志野4丁目 26期 新築一戸建て 全2棟 千葉県習志野市東習志野4丁目|4,290万円の新築一戸建て|分譲住宅や新築物件|エムイーPLUS城東株式会社

インスタグラム
定休日:年中無休 営業時間:9:00〜 0120-444-702
TOPページ >
物件検索 >
新築一戸建て
>
習志野市
>
京成本線
>
グラファーレ 習志野市東習志野4丁目 26期 新築一戸建て 全2棟

新築一戸建て

グラファーレ 習志野市東習志野4丁目 26期 新築一戸建て 全2棟NEW
お気に入り
価格 4,290万円 ローンシミュレーション
所在地 千葉県習志野市東習志野4丁目
この地域周辺の物件を見る
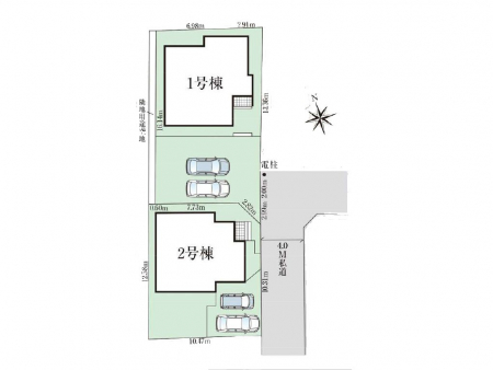
土地面積 161.09m² (48.73坪) 建物面積 101.01u
築年月 2026年7月築 間取り 4LDK (-)
交通
京成本線 実籾 徒歩15分
京成本線 八千代台 徒歩25分
ここがおすすめ

-


  •  図面と異なる場合は現況を優先
  • 周辺環境 小学校 320m 習志野市立東習志野小学校
  • 周辺環境 中学校 480m 習志野市立第四中学校
  • 周辺環境 駅 1200m 京成電鉄「実籾」駅
  • 周辺環境 幼稚園・保育園 530m 東習志野こども園
  • 周辺環境 病院 2170m 平山病院
  •  区画図
お問い合わせ、資料請求、見学のお申し込みはこちらから

電話をかける(携帯・PHS可)
0120-444-702
「ホームページを見た」とお伝え下さい。

お問い合わせ番号をお伝えください
RHS-991013453

内見予約
お問合せ

セールスポイント

特徴
  • フローリング
  • 給湯器
  • オール電化
  • システムキッチン
  • カウンターキッチン
  • シャンプードレッサー
  • 追い焚き
  • シャワー
  • バス・トイレ別
  • シャワートイレ
  • 室内洗濯機置場
  • 浴室乾燥機
  • コンロ二口
  • Wクローゼット
  • 床下収納
  • バルコニー
  • TVドアホン
  • 都市ガス
  • カースペース2台以上
  • 新着物件
セールスコメント
法22条区域 宅地造成等工事規制区域 日影規制(3h-2h/4m) 第一種高度地区 容積率:前面道路幅員制限 農地法 都市再生特別措置法 


物件概要

採光面 - 構造/階数 木造/地上2階建
建ぺい率 60(%) 容積率 160(%)
駐車場 現況/引渡し -/2026年8月上旬
土地権利 所有権 私道負担面積 -

接道状況 接道: 東 私道 道路幅: 4m 用途地域
第一種中高層住居専用地域
セットバック なし 法令上の制限 -
地目 宅地 地勢 0
建築確認番号 第HPA-26-01955-1号 都市計画 市街化区域
取引態様 仲介
情報更新日 2026年04月28日 次回更新日 2026年05月12日
※各種情報と差異がある場合は現況優先となります

学区情報

小学校区
()
中学校区
()
※物件情報の学区情報について
当サイト物件情報に記載されております通学区域(学区)情報は、国土数値情報ダウンロードサービスが提供する小学校区データ【2016年度】及び中学校区データ【2016年度】を元に加工したものですので、記載情報が現在の学区域と異なる場合がございます。
国土数値情報ダウンロードサービスのWEBサイト上で記述通り、データは必ずしも正確とは言えません。また、通学区域(学区)は毎年見直しの対象となりますので、そちらを踏まえ学区情報は参考としてご活用下さい。
お問い合わせ、資料請求、見学のお申し込みはこちらから

電話をかける(携帯・PHS可)
0120-444-702
「ホームページを見た」とお伝え下さい。

お問い合わせ番号をお伝えください
RHS-991013453

内見予約
お問合せ

この物件でローンシミュレーションする

価格 万円
年利率
ボーナス払い 返済年数
頭金 直接入力する 万円

毎月のご返済額

ボーナス(×年2回)

物件価格

4,290万円
※返済金額はあくまでも目安です。

こちらの物件は複数区画の分譲地・他にも販売中のマンションがあります。

習志野市東習志野4丁目
4190万円〜4290万円

電話でお問い合わせ
エムイーPLUS城東

電話をかける

0120-444-702

※「ホームページを見た」とお伝えください。
お問い合わせ番号をお伝えください
RHS-991013453

お問い合わせ

お問い合わせ内容
お問合せ内容必須
【備考欄】
詳細な見学ご希望時間、ご質問、ご希望条件などがございましたらお聞かせ下さい。
(2000文字以内)
お客様情報
お名前必須
連絡先必須 メールアドレス

※ご記入いただいたメールアドレス宛てに、お問合せ内容の確認メールをお送りいたします。
※Yahoo!メールなどのフリーメールをご利用の場合、迷惑メールフォルダに入る場合があります。
 迷惑メールのフォルダ・設定等をご確認下さい。
電話番号
FAX(任意)
※ご入力いただいたお客さまの個人情報は、「個人情報の取扱いについて」に基づき適正に取り扱います。必ずお読みになり、同意の上お問い合わせください。

お気軽にお問い合わせください

0120-444-702
物件番号 RHS-991013453
※「ホームページを見た」
とお伝え下さい。
学区検索 エリア検索 来店予約はこちら
スマートフォン用サイトはこちら

会社概要

店舗写真

エムイーPLUS城東株式会社
〒121-0062
東京都足立区南花畑2丁目
7番8号
0120-444-702
営業時間 : 9:00〜
定休日 : 年中無休

詳しくはこちら